Детали проекта
Административный корпус Концерн ВКО «Алмаз Антей», расположенного по адресу: г. Москва, ул. Верейская, д.41, кор. 20.
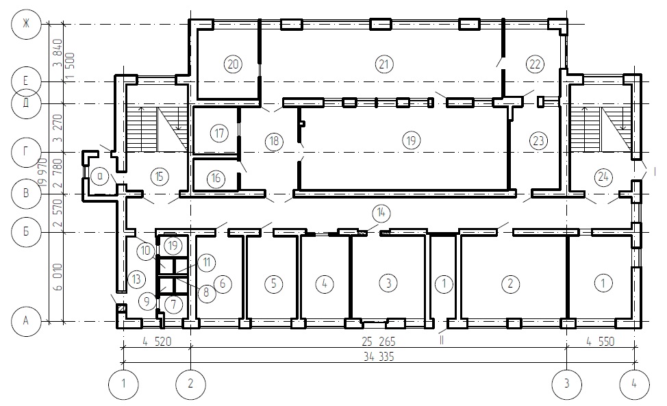
Описание объекта: Существующее здание трёхэтажное, без подвала, с чердаком. В плане имеет форму многоугольника. Размеры здания в крайних осях 34,335х19,97 м.
Конструктивная система здания – стеновая.
Фундаменты существующего здания ленточные, из монолитного бетона с докладкой блоками ФБС и полнотелым керамическим кирпичом на цементно-песчаном растворе, с глубиной заложения от уровня пола первого этажа 2,08 — 2,73 м, ширина подошвы фундаментов 0,78 – 1,46 м. Несущие стены здания кирпичные. Перекрытия сборные железобетонные. Существующая кровля двускатная из металлических ферм и деревянных стропил.
Проектом предусмотрена реконструкция существующего здания с размещением на первом этаже фельдшерского здравпункта, разработкой основных проектных решений, отделки помещений, в соответствии с действующими нормативными документами и заданием на проектирование, так же предусмотрена реконструкция кровли объекта и устройство вентилируемого фасада здания корпуса в соответствии с общей архитектурной концепцией штаб-квартиры АО «Концерн ВКО «Алмаз-Антей».
Общая площадь объекта: 3000 кв.м.
Цель работ:
Выполнить проект реконструкции административного здания.
Результат работ:
Выполнены расчеты всех несущих конструкций.
Проектными решениями в рамках проведения реконструкции предусмотрены отделочные и ремонтные работы, в том числе:
- перепланировка;
- замена отделки полов, стен, потолков, лестниц;
- замена оконных и дверных заполнений;
- замена деревянных конструкций кровли;
- замена кровельного покрытия;
- устройство вентилируемого фасада с облицовкой стальными фасадными кассетами;
- восстановление отмостки по всему периметру здания;
- устройство площадок и навесов с фризами перед входными группами;
- устройство железобетонного перекрытия по металлическим балкам под вентиляционное оборудование;
- усиление верхних и нижних поясов ферм;
- укрепление основания фундамента;
- усиление балок покрытия;
- ремонт стены;
- усиление пробиваемых оконных и дверных проёмов;
- устройство уличной площадки под вентиляционное перекрытие;
- замена инженерных систем;
- устройство организованного водостока.


















