Детали проекта
Выполнение проектных работ по разработке быстровозводимого (типового) здания пожарного депо расположенного по адресу: Московская область, г. Реутов, ул. Молодежная
Вид строительства: Новое строительство.
Адрес: Московская область, г. Реутов, ул. Молодежная.
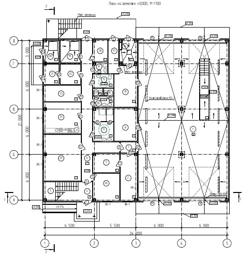
Описание объекта: Пожарное Депо — объект пожарной охраны, в котором расположены помещения пожарной техники и техобслуживания, служебные и вспомогательные помещения личного состава и пункта связи пожарной части. Помещение пожарной техники двухсветное, высотой до конструкций кровли не менее 6,0м., предназначено для размещения 4-х единиц пожарной техники и осуществления мелкого ремонта. Административная часть двухэтажная, непосредственно примыкает к гаражу, в ней расположены необходимые помещения для оснащения пожарного расчета, мойки и сушки обмундирования и пожарных рукавов, санитарно-бытовые помещения для пожарных, помещения для отдыха, административные помещения.
Проектируемое здание пожарного депо двухэтажное, простой прямоугольной формы в плане с размерами в осях 24 х 21 м, высота в верхней точке – 16,5 м. Стены из сэндвич-панелей.
Результат работ
В ходе проектирования выполнены расчеты несущих конструкций и грунтов оснований, разработаны чертежи, достаточные для строительства.
Разработка рабочей документации включила следующие разделы:
- схема планировочной организации земельного участка.
- архитектурные решения.
- конструктивные решения.
- инженерные системы (электроснабжения, водоснабжения, водоотведения, отопления, вентиляции и кондиционирования воздуха, тепловые сети, сети связи);
- технологические решения;
- проект организации строительства;
- мероприятия по охране окружающей среды;
- мероприятия по обеспечению пожарной безопасности;
- мероприятия по обеспечению доступа инвалидов;
- мероприятия по обеспечению соблюдения требований энергетической эффективности (проведены расчеты сопротивления теплопередаче ограждающих конструкций здания (стен, окон, витражей, входных дверей, покрытия, зенитного фонаря); составлен «Энергетический паспорт здания»);
- требования к обеспечению безопасной эксплуатации объектов капитального строительства.
Также был разработан альбом Архитектурно-градостроительного облика здания.
Архитектурный облик выполнен в современном стиле. Основная идея – это функциональность и лаконичность, отказ от нагромождения деталей. В проектируемом объекте преобладают строгие прямые формы в сочетании с большими плоскостями ворот контрастного цвета и витражным остеклением. Кровля здания скрыта парапетом по всему периметру. Яркость архитектурного облика в сложившейся градостроительной среде достигнута за счет сэндвич панелей контрастных цветов. В целом облик здания узнаваем для своего функционального назначения.


















